top of page
AXEL HOTEL - DONOSTIA, SPAIN
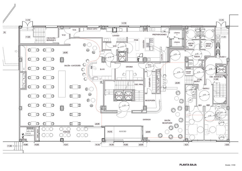
Construction and license managements and drawings of plans. The building was an old police station and due to the shift of the station to another building, a private investor wanted to make a full remodel and convert it in a hotel.
Collaboration with Briones&Gargallo Architects
bottom of page















